Icon

ساختمان اداری آریا صنعت

ساختمان اداری آریا صنعت – طراحی و اجرای مجموعه اداری در تهران – کرج

موقعیت: تهران – کرج
تاریخ شروع: تابستان ۱۴۰۰
متراژ طراحی: حدود ۱۰۰۰ متر مربع
وضعیت: اتمام طراحی و اجرا
کارفرما: شرکت آریا صنعت
تیم همکار: شرکت نیکان
نوع پروژه: طراحی و اجرای ساختمان اداری

مسئولیت‌ها در این پروژه:

برداشت و تحلیل بنای موجود

مطالعات فاز صفر (تحلیل سایت و نیازهای کارفرما)

طراحی فاز ۱ (طراحی معماری و کانسپت)

طراحی سه‌بعدی و مدل‌سازی (3D Design)

ارائه رندرهای واقع‌گرایانه سه‌بعدی

طراحی فاز ۲ اجرایی (جزئیات فنی و اجرایی)

برآورد هزینه و انتخاب متریال

نظارت بر اجرا

شرح پروژه:
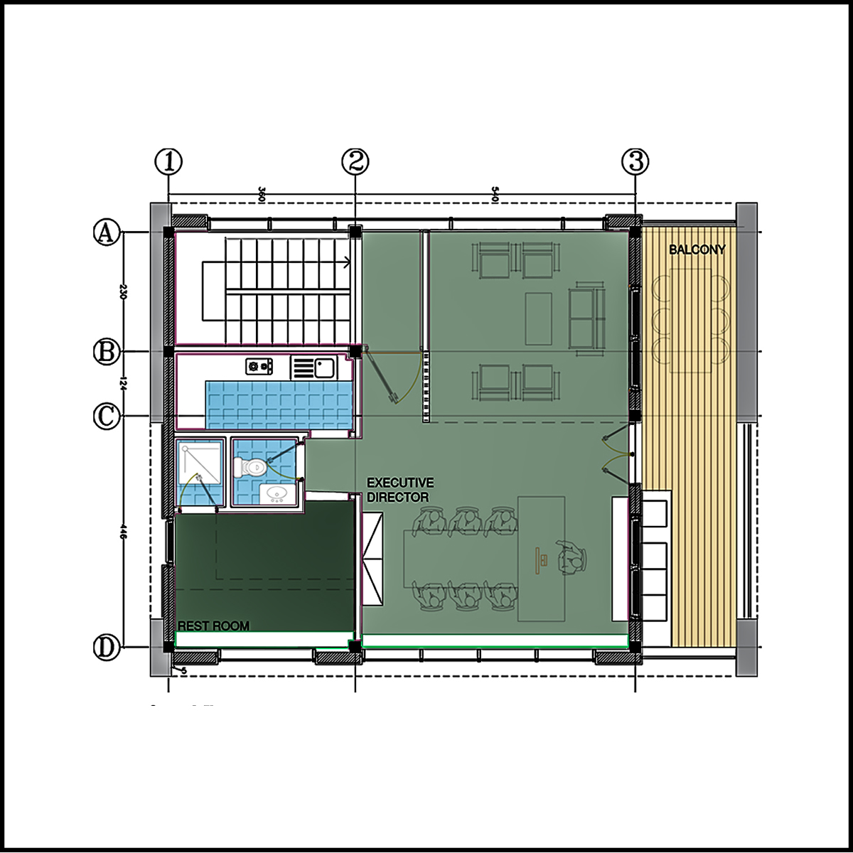
پروژه‌ی «ساختمان اداری آریا صنعت» در قالب سه فاز طراحی داخلی، طراحی نما و محوطه‌سازی انجام شد. هدف اصلی در طراحی این پروژه، خلق تنوع فضایی در بستری صنعتی بود. با توجه به حضور ماشین‌آلات سنگین در سایت و شیب طبیعی زمین، تصمیم بر آن شد که ساختمان اداری در مرتفع‌ترین نقطه‌ی سایت جانمایی شود تا دید و اشراف مناسبی بر کل مجموعه داشته باشد.در طراحی حجم و فرم بنا، از معماری سوله‌های صنعتی الهام گرفته شد و در نمای آن ترکیبی از متریال سیمان و ورق آهنی صنعتی به کار رفت تا هویت صنعتی مجموعه حفظ شود. در طراحی محوطه، فضاهایی برای مکث، تعامل و گفت‌وگو با کارفرمایان پیرامون ساختمان در نظر گرفته شد. همچنین حفظ پوشش گیاهی موجود در سایت از اولویت‌های طراحی بود و گونه‌های جدید گیاهی نیز با توجه به شرایط اقلیمی منطقه انتخاب و چیدمان شدند.