Icon

ساختمان ادری مبنا - پردیس

ساختمان اداری مبنا – طراحی نمای مدرن با پوسته اکسپندد متال در تهران

موقعیت: تهران
تاریخ شروع: تابستان ۱۴۰۰
متراژ طراحی: حدود ۲۰۰۰ متر مربع
وضعیت: اتمام طراحی
کارفرما: شرکت مبنا
تیم همکار: شرکت هفت بنا
نوع پروژه: ساختمان اداری

مسئولیت‌ها در این پروژه:

مطالعات فاز صفر (تحلیل سایت و نیازهای کارفرما)

طراحی فاز ۱ (طراحی مفهومی و معماری)

طراحی سه‌بعدی (3D Design)

ارائه رندرهای واقع‌گرایانه سه‌بعدی

طراحی فاز ۲ اجرایی (جزئیات فنی و ساخت)

شرح پروژه:
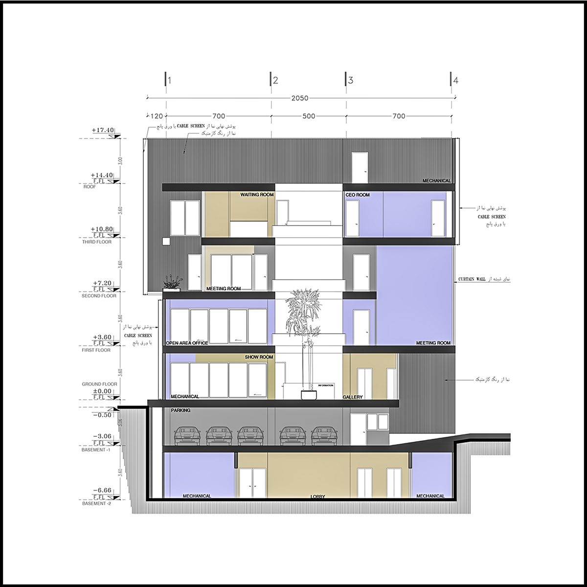
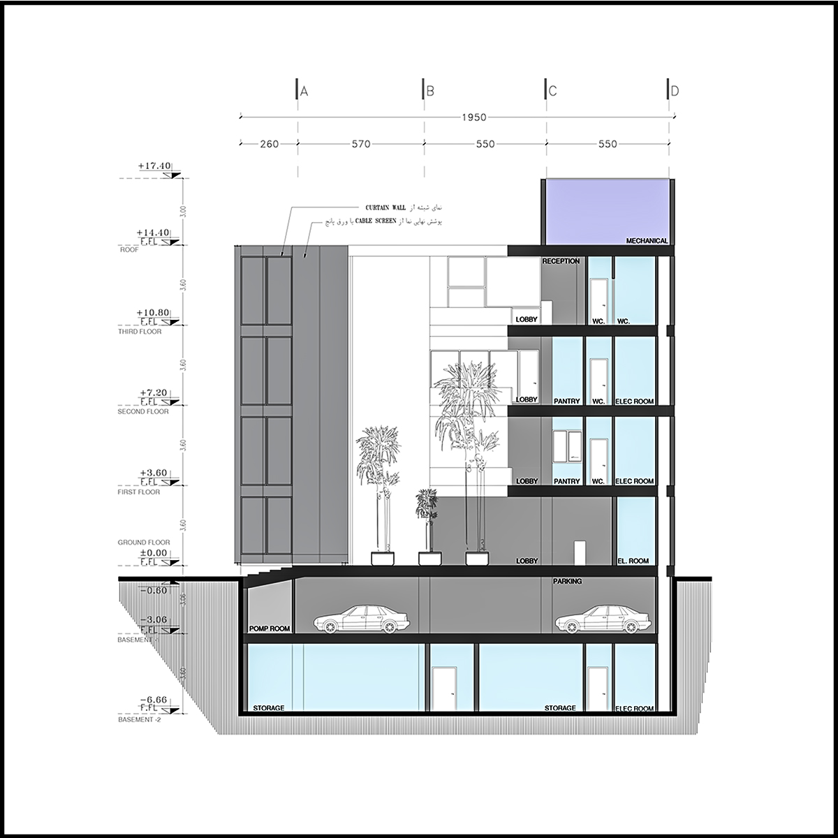
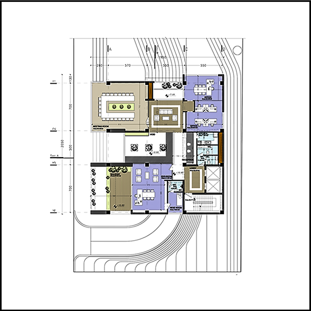
پروژه‌ی «ساختمان اداری مبنا» در پارک علم و فناوری تهران و در قالب دو فاز طراحی – شامل طراحی داخلی و طراحی نما – انجام شد. چالش اصلی پروژه، طراحی بنایی شش‌طبقه بر روی زمین شیبدار بود که نیازمند هماهنگی دقیق میان فرم معماری، دسترسی‌ها و عملکردهای داخلی ساختمان بود.

در طراحی نما، هدف ایجاد هویتی همسان با ساختمان اداری مرکزی مبنا بود. همانند پروژه‌ی قبلی، ایده‌ی اصلی بر پایه‌ی ایجاد یک پوسته‌ی محافظ بر روی نمای شیشه‌ای شکل گرفت؛ با این تفاوت که در این پروژه از اکسپندد متال (Expanded Metal) به عنوان متریال اصلی پوسته استفاده شد.

این پوسته فلزی ضمن تقویت زیبایی و یکپارچگی بصری بنا، نقش مؤثری در کنترل نور، کاهش گرمای مستقیم خورشید و افزایش بهره‌وری انرژی ایفا می‌کند. بیش از ۷۰ درصد سطح نما از شیشه تشکیل شده که توسط این پوسته نیمه‌شفاف در برابر نور و حرارت محافظت می‌شود و جلوه‌ای مدرن و فناورانه به ساختمان می‌بخشد.