Icon

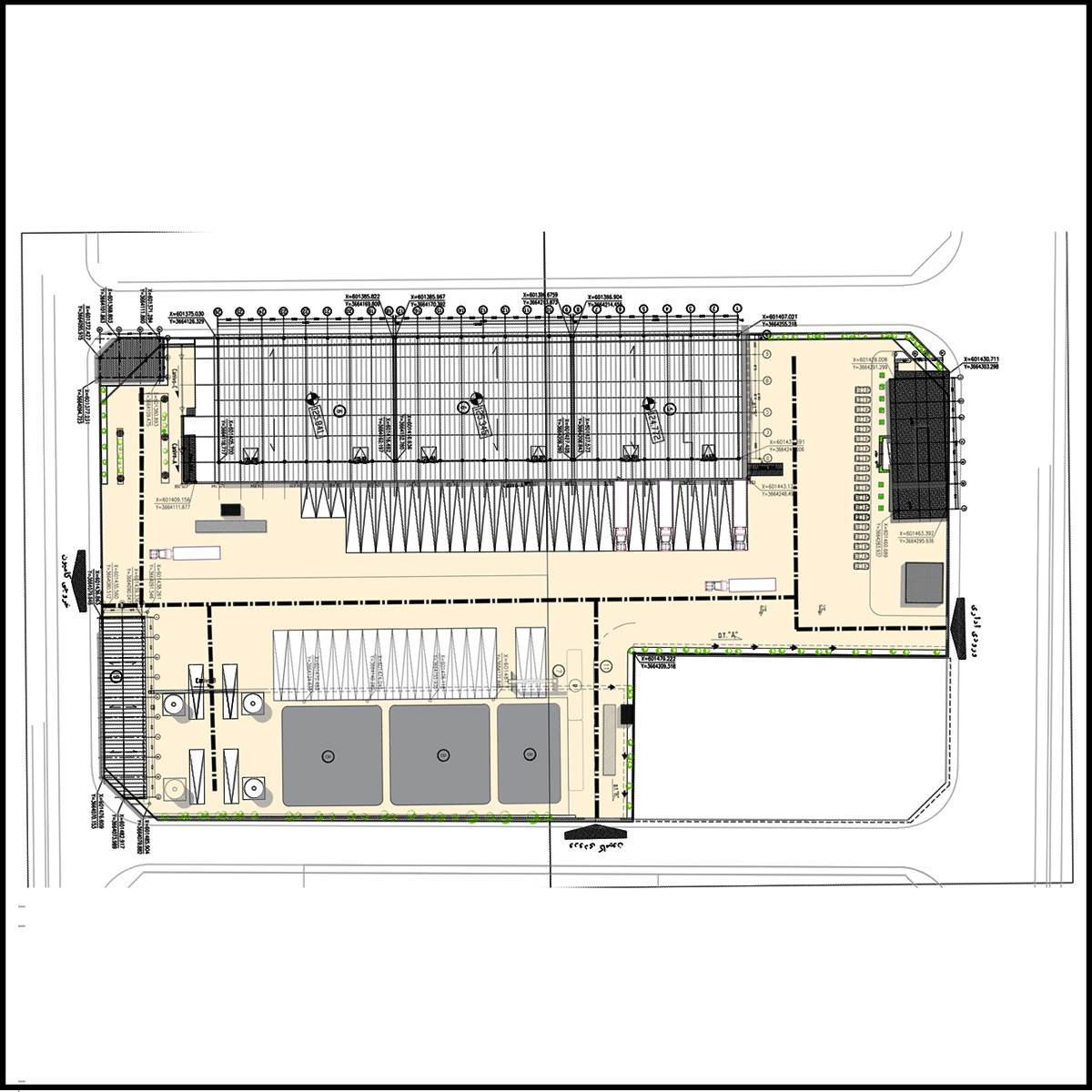
پایانه مرزی مهران

پایانه مرزی مهران

موقعیت :مرز مهران 
تاریخ شروع :بهار  1398
مجموع متراژطراحی :حدود3000متر مربع بنا 
وضعیت :اتمام طراحی واتمام اجرا  
کارفرما:شرکت کارگزاری بورس آگاه 
تیم همکار :شرکت نیکان
پروژه :  اداری
مسئولیت در این پروژه:

  • مطالعات فاز صفر
  • طراحی فاز 1 
  • طراحی 3 بعدی 
  • ارائه رندر های سه بعدی 
  • طراحی فاز 2 اجرایی
  • برآورد هزینه و متریال 

توضیحات پروژه:
پایانه مرزی مهران با کاربری صنعتی در قالب  2 فاز طراحی انجام شد  شامل طراحی سایت پلان و طراحی ساختمان های موجود در سایت .
با توجه  به خواسته های کارفرما درب های متعددی جهت خروج و ورود در  پروژه تعبیه شد است که  این ورودی و خروجی ها سبب شکل گیری فضا ها و جا نمایی سوله ها و ساختمان های اداری شد .طراحی این پروزه با توجه به کاربری صنعتی دارای  نکات کنترلی شامل نحوه حرکت ماشین های سنگین در سایت و نحوه پر و خالی شدن سوله ها و… بوده است .